Need More Info?

Crystal Olenbush

512-344-6000
  • 18231 Lakepoint Cove

  • $675,000 REDUCED
  • 3 Beds, 3 Bath, 2184 SQ. Feet, 0.12 Acres Residential Lago Vista, TX 78645

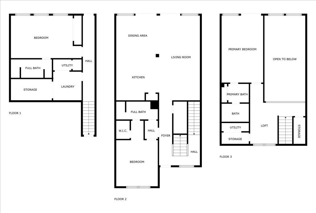
Welcome to Your Lakefront Retreat on Lake Travis! Experience lake living at its finest in this fully remodeled, waterfront townhome with direct water access at the deepest part of Lake Travis. Enjoy your private two-level boat dock with lift, storage, and swing. Nestled in the highly sought-after Point Venture community, this 3-bedroom, 3-bathroom oasis offers breathtaking, unobstructed views from 3 different balconies and top-tier amenities for both relaxation and recreation. Each spacious bedroom boasts its own ensuite bathroom and private balcony overlooking the lake. The main level features a step-free entry to the kitchen, living, and one of the bedrooms from your front row designated parking. The living room offers an open floor plan bathed in natural light, a beautifully updated kitchen, and a large balcony overlooking Lake Travis from the double sliding glass doors—the perfect spot for your morning coffee. Upstairs, discover a serene retreat with an additional ensuite bedroom, office nook, and another private lake-view balcony. The lower level hosts the third bedroom, an oversized laundry room, ample storage, and direct access to the lake from the third balcony. Each room provides it’s own lakefront retreat with the privacy of it’s own bathroom and balcony. Enjoy endless amenities, including a neighborhood pool, tennis and pickleball courts, a lakefront golf course, and a private beach. Dine at the on-site floating restaurant and marina, or explore miles of pristine shoreline. All of the incredible amenities can be enjoyed in this golf cart friendly community. Whether you're looking for a permanent residence or a lucrative short-term rental investment, this stunning lake home is your chance to embrace the ultimate Lake Travis lifestyle. Don’t miss out—schedule your private tour today!

Essential Information

  • MLS® #8649105
  • Price$675,000
  • Bedrooms3
  • Bathrooms3.00
  • Full Baths3
  • Square Footage2,184
  • Acres0.12
  • Year Built1996
  • TypeResidential
  • Sub-TypeTownhouse
  • StatusActive

Community Information

  • Address18231 Lakepoint Cove
  • SubdivisionPoint Venture Sec 01-A
  • CityLago Vista
  • CountyTravis
  • StateTX
  • Zip Code78645

Amenities

  • ViewLake, Water
  • Is WaterfrontYes

Utilities

Electricity Connected, Natural Gas Connected, Sewer Connected, Underground Utilities, Water Connected

Features

Barbecue, Clubhouse, Fitness Center, Golf, Lake, Playground, Park, Pool, Planned Social Activities, Restaurant, Sport Court(s), Storage Facilities, Tennis Court(s)

Parking

Direct Access, Driveway, Private, See Remarks

Waterfront

Lake Front, Waterfront, Boat Ramp/Lift Access, Lake Privileges

Interior

  • InteriorSee Remarks, Tile, Wood
  • HeatingCentral
  • CoolingCentral Air, Ceiling Fan(s)
  • FireplacesNone
  • StoriesThree Or More

Appliances

Dryer, Dishwasher, Free-Standing Refrigerator, Disposal, Gas Range, Microwave, Oven, Refrigerator, Self Cleaning Oven, Washer

Exterior

  • WindowsBlinds
  • RoofComposition
  • ConstructionHardiPlank Type
  • FoundationSlab

Exterior Features

Balcony, Dock, See Remarks, Boat Lift, Boat Slip

Lot Description

Close to Clubhouse, Front Yard, Near Golf Course, Views

School Information

  • DistrictLago Vista ISD
  • ElementaryLago Vista
  • MiddleLago Vista
  • HighLago Vista

Map & Directions

View in Google Maps
Please provide a valid email address.

Price Change History for 18231 Lakepoint Cove, Lago Vista, TX (MLS® #8649105)

Date Details Price Change
Price Reduced $675,000 $25,000 (3.57%)
Price Reduced (from $725,000) $700,000 $25,000 (3.45%)

Property Listed by: Womack Real Estate Llc

The information being provided is for consumers' personal, non-commercial use and may not be used for any purpose other than to identify prospective properties consumers may be interested in purchasing.

Based on information from the Austin Board of REALTORS® (alternatively, from ACTRIS) from November 17th, 2025 at 2:45am CST. Neither the Board nor ACTRIS guarantees or is in any way responsible for its accuracy. The Austin Board of REALTORS®, ACTRIS and their affiliates provide the MLS and all content therein "AS IS" and without any warranty, express or implied. Data maintained by the Board or ACTRIS may not reflect all real estate activity in the market.

All information provided is deemed reliable but is not guaranteed and should be independently verified.