Need More Info?

Crystal Olenbush

512-344-6000
  • 1305 Salina Street 2

  • $199,900 REDUCED
  • 0.07 Acres Land Austin, TX 78702

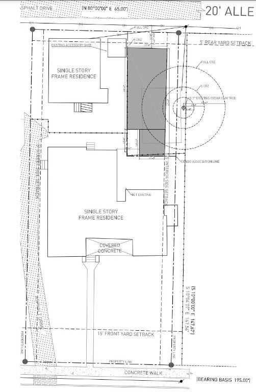
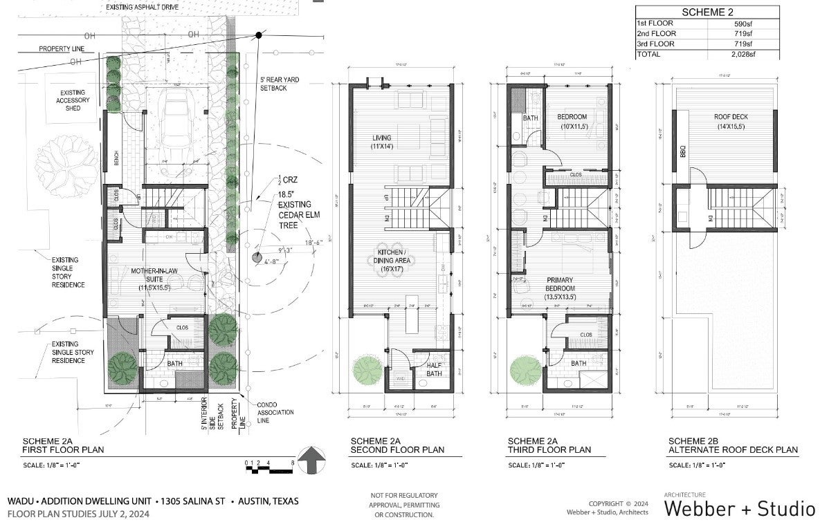
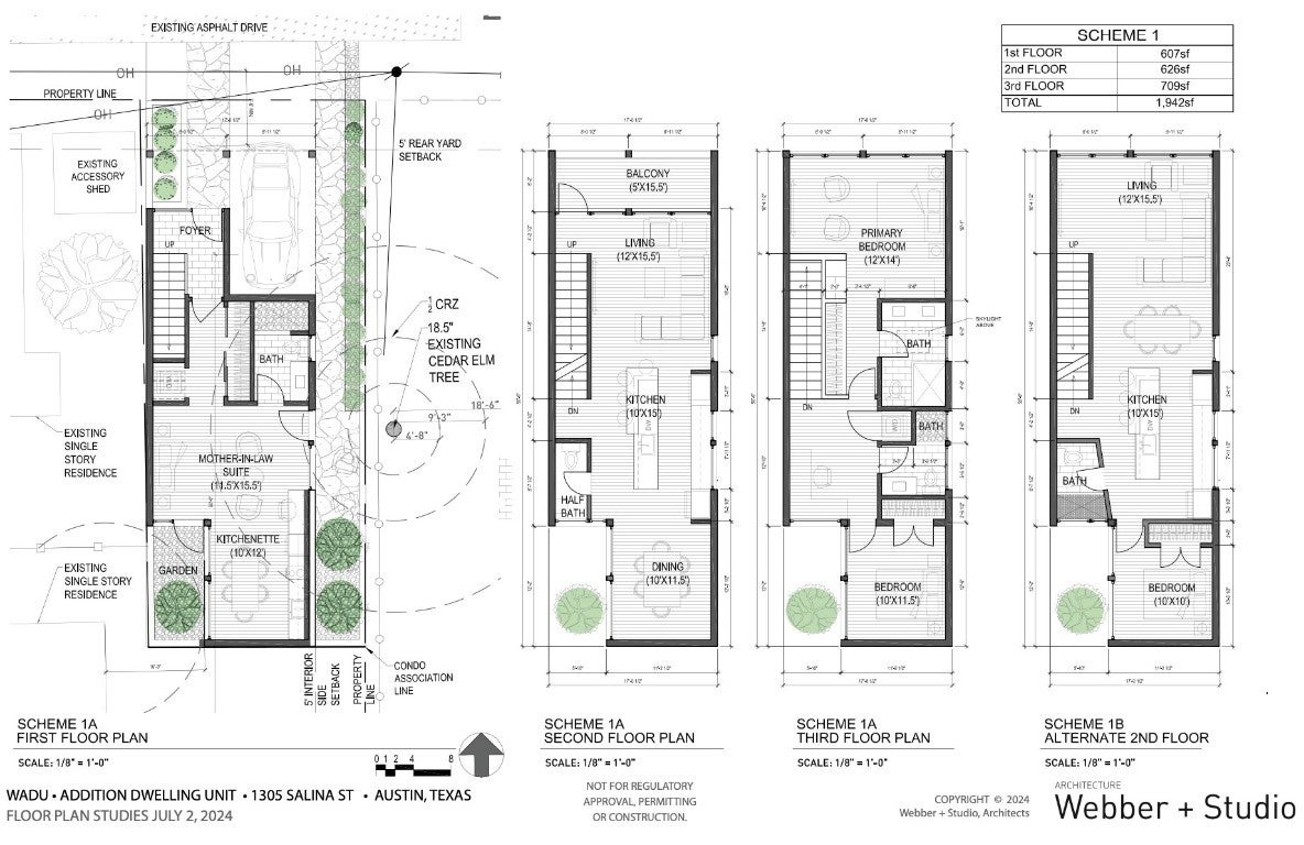
Small lot with huge potential. Architectural available from Webber Studio for ~2,000 sf home. Existing structure is a tear-down. Great part of east Austin. Alley access.

View More Properties in the Austin School District.

Essential Information

  • MLS® #8631164
  • Price$199,900
  • Bathrooms0.00
  • Acres0.07
  • TypeLand
  • Sub-TypeUnimproved Land
  • StatusActive

Community Information

  • Address1305 Salina Street 2
  • SubdivisionEast 13th Street Condo
  • CityAustin
  • CountyTravis
  • StateTX
  • Zip Code78702

Amenities

  • FeaturesNone
  • ViewNone
  • WaterfrontNone

Utilities

Cable Available, Electricity Available, Phone Available, Sewer Available, Water Available, Natural Gas Available

Exterior

  • Lot DescriptionCity Lot, Alley

School Information

  • DistrictAustin ISD
  • ElementaryCampbell
  • MiddleKealing
  • HighMcCallum

Additional Information

  • ZoningSF3

Map & Directions

View in Google Maps
Please provide a valid email address.

Price Change History for 1305 Salina Street 2, Austin, TX (MLS® #8631164)

Date Details Price Change
Price Reduced $199,900 $7,000 (3.38%)
Price Reduced $206,900 $10,000 (4.61%)
Price Reduced $216,900 $10,000 (4.41%)
Price Reduced $226,900 $3,000 (1.30%)
Price Reduced $229,900 $3,000 (1.29%)
Show More (10)

Property Listed by: Little City Properties

The information being provided is for consumers' personal, non-commercial use and may not be used for any purpose other than to identify prospective properties consumers may be interested in purchasing.

Based on information from the Austin Board of REALTORS® (alternatively, from ACTRIS) from December 10th, 2025 at 1:30am CST. Neither the Board nor ACTRIS guarantees or is in any way responsible for its accuracy. The Austin Board of REALTORS®, ACTRIS and their affiliates provide the MLS and all content therein "AS IS" and without any warranty, express or implied. Data maintained by the Board or ACTRIS may not reflect all real estate activity in the market.

All information provided is deemed reliable but is not guaranteed and should be independently verified.