Need More Info?

Crystal Olenbush

512-344-6000
  • 205 W Croslin Street 1 & 2

  • $1,400,000 REDUCED
  • 5 Beds, 6 Bath, 2790 SQ. Feet, 0.09 Acres Residential Austin, TX 78752

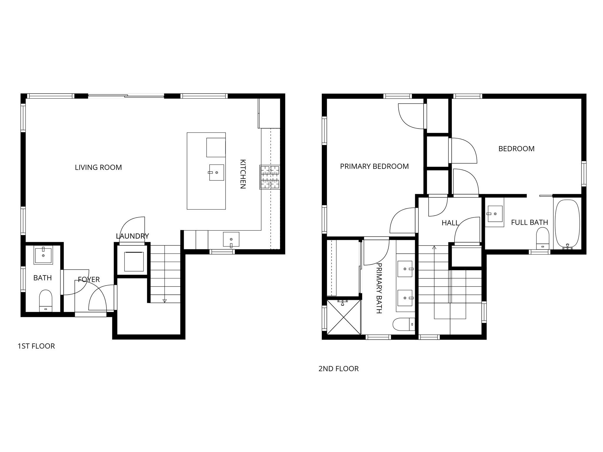
Rare opportunity to own two architecturally significant residences on one property in Central Austin. Designed by renowned Reach Architects and built by Homebound, these modern homes offer exceptional versatility for investors, owner-occupants seeking income potential, multi-generational living, or buyers needing a dedicated office or guest residence. The front home has operated as a successful short-term rental, offering immediate income-producing potential or a turnkey furnished option (furnishings available for purchase with acceptable terms). The residence features clean architectural lines, abundant natural light, and an open-concept floor plan. The chef’s kitchen includes quartz countertops, custom cabinetry, and an oversized island that flows seamlessly into living and dining areas. Located on a designated “Living Street,” the home enjoys a community-focused setting with neighbors frequently walking and biking. The rear residence is a private two-bedroom, two-and-a-half-bath home with its own gated entrance and covered carport. The open main level includes a spacious kitchen, living, and dining area, windowed powder room, and efficient laundry space. Upstairs, both bedrooms offer excellent natural light, including skylights in the bathrooms. Oversized casement windows, contemporary lap siding, and a full-glass entry door highlight the distinctive Austin-modern design. Property enhancements include automatic drive gates with keypad and remotes, wrought iron fencing, refreshed and stained wood fencing, and landscaped outdoor spaces. The homes have been meticulously maintained with ongoing yard care, pest control, and annual HVAC servicing. Ideally located with convenient access to Downtown, Mueller, UT Austin, and major corridors including I-35, 290, and 183, this property offers a rare blend of design pedigree, income potential, and flexible living options.

View More Properties in the Austin School District.

Essential Information

  • MLS® #6649865
  • Price$1,400,000
  • Bedrooms5
  • Bathrooms6.00
  • Full Baths4
  • Half Baths2
  • Square Footage2,790
  • Acres0.09
  • Year Built2022
  • TypeResidential
  • Sub-TypeCondominium
  • StatusActive

Community Information

  • Address205 W Croslin Street 1 & 2
  • SubdivisionHighland
  • CityAustin
  • CountyTravis
  • StateTX
  • Zip Code78752

Amenities

  • FeaturesNone, Curbs
  • # of Garages1
  • GaragesGarage Door Opener
  • ViewNeighborhood
  • WaterfrontNone

Utilities

Cable Available, Electricity Connected, High Speed Internet Available, Sewer Connected, Water Connected

Parking

Additional Parking, Covered, Driveway, Garage Faces Front, Garage, Garage Door Opener, Off Street, Attached Carport, Electric Gate

Interior

  • InteriorConcrete, Wood
  • HeatingCentral
  • # of Stories2
  • StoriesTwo

Appliances

Dishwasher, Exhaust Fan, Free-Standing Gas Oven, Disposal, Range Hood

Cooling

Central Air, Ceiling Fan(s), Zoned, Multi Units

Exterior

  • RoofShingle
  • ConstructionGlass, HardiPlank Type
  • FoundationSlab

Exterior Features

Lighting, Private Entrance, Private Yard, Rain Gutters

Lot Description

Back Yard, Front Yard, Sprinklers In Rear, Sprinklers In Front, Landscaped, Native Plants, Near Public Transit, Sprinkler - Rain Sensor, Sprinklers Automatic, Sprinklers In Ground, Few Trees

Windows

Blinds, ENERGY STAR Qualified Windows, Window Treatments

School Information

  • DistrictAustin ISD
  • ElementaryBrown
  • MiddleWebb
  • HighNavarro Early College

Map & Directions

View in Google Maps
Please provide a valid email address.

Price Change History for 205 W Croslin Street 1 & 2, Austin, TX (MLS® #6649865)

Date Details Price Change
Price Reduced (from $1,450,000) $1,400,000 $50,000 (3.45%)

Property Listed by: Kw-austin Portfolio Real Estate

The information being provided is for consumers' personal, non-commercial use and may not be used for any purpose other than to identify prospective properties consumers may be interested in purchasing.

Based on information from the Austin Board of REALTORS® (alternatively, from ACTRIS) from March 13th, 2026 at 12:31pm CDT. Neither the Board nor ACTRIS guarantees or is in any way responsible for its accuracy. The Austin Board of REALTORS®, ACTRIS and their affiliates provide the MLS and all content therein "AS IS" and without any warranty, express or implied. Data maintained by the Board or ACTRIS may not reflect all real estate activity in the market.

All information provided is deemed reliable but is not guaranteed and should be independently verified.