Need More Info?

Crystal Olenbush

512-344-6000
  • 702 San Antonio Street

  • $6,975,000
  • 4 Beds, 7617 SQ. Feet, 0.06 Acres Residential Austin, TX 78701

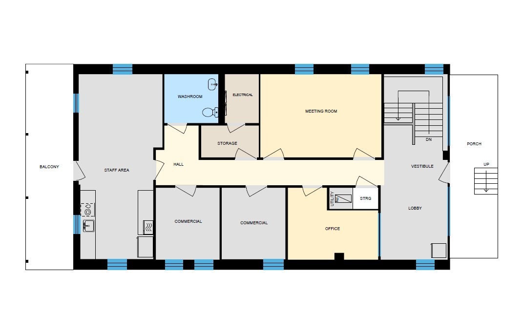
Tucked into Austin’s historic Bremond Block, The San Antonian offers a chance to own a piece of downtown history — and reimagine it as your dream residence. This stunning four-story brick building spans over 7,600 square feet, with timeless architecture, arched windows, and skyline views that frame the city in every direction. Inside, six flexible suites can easily be reconfigured into spacious living areas, private bedrooms, or creative studios. Picture an open-concept main floor with soaring ceilings and original masonry details, a rooftop entertaining space, or a penthouse-style owner’s retreat overlooking downtown. Outside, a peaceful courtyard provides privacy in the middle of the city — while everything Austin is famous for lies just blocks away: Whole Foods, the Capitol, the Seaholm District, and Lady Bird Lake. With historic tax exemptions, live/work potential, and six City parking permits, this is a truly unique property for someone who wants character, convenience, and endless creative options. Call for pricing.

View More Properties in the 78701 Zip Code. View More Properties in the Austin School District.

Essential Information

  • MLS® #3420492
  • Price$6,975,000
  • Bedrooms4
  • Bathrooms0.00
  • Square Footage7,617
  • Acres0.06
  • Year Built1910
  • TypeResidential
  • Sub-TypeOther
  • StatusActive

Community Information

  • Address702 San Antonio Street
  • SubdivisionBlock 079 Original City
  • CityAustin
  • CountyTravis
  • StateTX
  • Zip Code78701

Amenities

  • FeaturesNone
  • ParkingAssigned
  • ViewCity
  • WaterfrontNone
  • Has PoolYes

Utilities

Cable Available, Cable Connected, Electricity Connected, Fiber Optic Available, Natural Gas Connected, High Speed Internet Available, Phone Available, Sewer Connected, Underground Utilities, Phone Connected

Interior

  • AppliancesSee Remarks
  • StoriesThree Or More

Exterior

  • Lot DescriptionCity Lot, Views
  • ConstructionBrick

School Information

  • DistrictAustin ISD
  • ElementaryMathews
  • MiddleO Henry
  • HighAustin

Map & Directions

View in Google Maps
Please provide a valid email address.

Price Change History for 702 San Antonio Street, Austin, TX (MLS® #3420492)

Date Details Price Change
Price Increased (from $0) $6,975,000 $6,975,000 ( Warning: Division by zero in /var/www/vhosts/austinrealestate.com/httpdocs/idx/inc/tpl/misc/brew/history.tpl on line 28 0.00%)

Property Listed by: Moreland Properties

The information being provided is for consumers' personal, non-commercial use and may not be used for any purpose other than to identify prospective properties consumers may be interested in purchasing.

Based on information from the Austin Board of REALTORS® (alternatively, from ACTRIS) from December 12th, 2025 at 6:31pm CST. Neither the Board nor ACTRIS guarantees or is in any way responsible for its accuracy. The Austin Board of REALTORS®, ACTRIS and their affiliates provide the MLS and all content therein "AS IS" and without any warranty, express or implied. Data maintained by the Board or ACTRIS may not reflect all real estate activity in the market.

All information provided is deemed reliable but is not guaranteed and should be independently verified.